

Siêu rẻ căn 2PN 74.2m2 giá 5 tỷ 67tr/m2, view bể bơi 1000m2 phân khu cao cấp Paris
Xã Đa Tốn, Kiêu Kỵ, Dương Xá và một phần thị trấn Trâu Quỳ, Gia Lâm, Hà Nội
Mức giá
5 tỷ67.6 triệu/m²Diện tích
74 m²Đặc điểm của bất động sản
Mô tả chi tiết
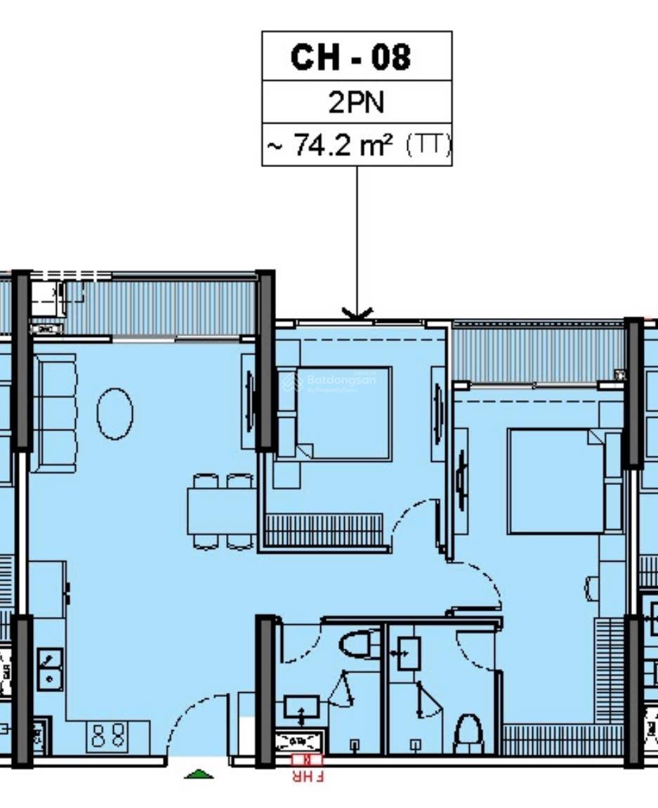
Loại căn: 2 phòng ngủ.
Diện tích thông thủy: 74,2m².
View: Nội khu, hồ bơi trung tâm, quảng trường.
Tiến độ thanh toán: 2 năm.
Giá bán: 5 tỷ.
Ưu điểm nổi bật:
Thiết kế 2PN rộng rãi, phòng nào cũng thoáng sáng.
Phòng khách + bếp liên thông, tối ưu công năng.
Ban công thoáng, view hồ bơi trung tâm không bị chắn.
Vị trí tòa PR1 trung tâm dự án, di chuyển tiện ích cực gần.
Phù hợp ở thực gia đình trẻ hoặc đầu tư giữ tài sản lâu dài.
Liên hệ Mr. Thành xem nhà & tư vấn chi tiết:
Lưu ý :
Quý vị đang xem nội dung tin rao "Bán căn nhà đường Võ Oanh, Hẻm xe hơi 5x15,1 Trệt 2 lầu/ 1 tum, nhà kiên cố ở liền, Giá 15ty " - Mã tin 250809. Mọi thông tin, nội dung liên quan tới tin rao này là do người đăng tin đăng tải và chịu trách nhiệm. Chuannhadat.com luôn cố gắng để các thông tin được hữu ích nhất cho quý vị tuy nhiên Chuannhadat.com không đảm bảo và không chịu trách nhiệm về bất kỳ thông tin, nội dung nào liên quan tới tin rao này. Trường hợp phát hiện nội dung tin đăng không chính xác. Quý vị hãy cung cấp thông tin cho Chuannhadat.com bằng cách gửi " Phản ánh / Báo xấu " để Ban quản trị kiểm tra lại thông tin bài đăng nhanh và kịp thời nhất.








