

Duy nhất 10.000m² tại KCN Song Mai | QL1A CT Hà Nội phù hợp DN xuất nhập khẩu, điện tử, cơ khí
Xã Song Mai, Thành phố Bắc Giang, Bắc Giang
Mức giá
32 tỷ3.2 triệu/m²Diện tích
10000 m²Lưu tin
Đặc điểm của bất động sản
Địa chỉXã Song Mai, Thành phố Bắc Giang, Bắc Giang
Giá32 tỷ
Diện tích10000 m²
Giá / m23.2 triệu/m²
Pháp lýSổ hồng/Sổ đỏ
Ngày đăng3 tháng trước
Mô tả chi tiết
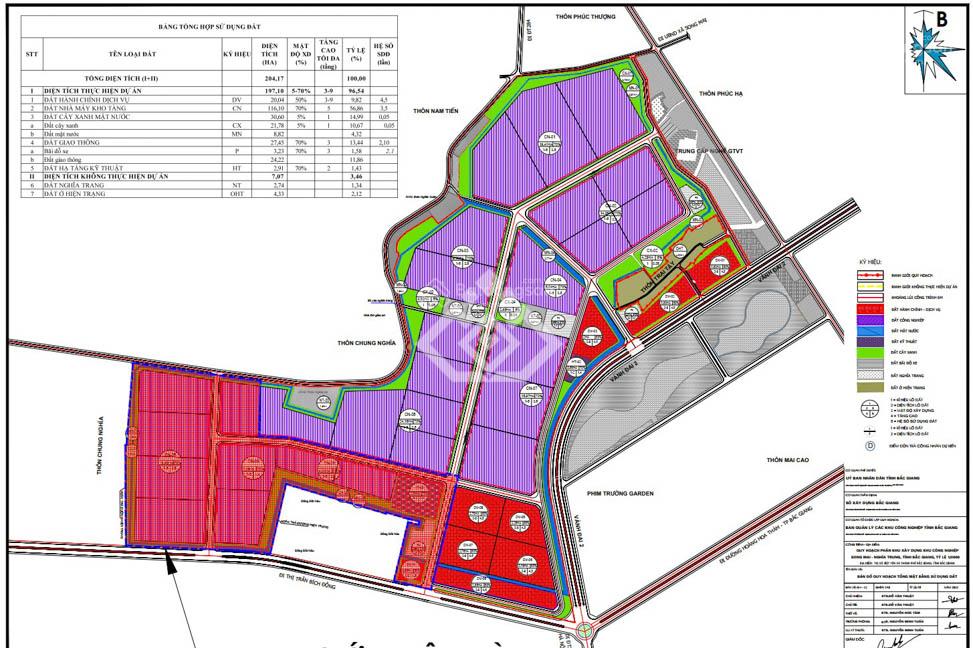
Khu công nghiệp Song Mai Nghĩa Trung sở hữu vị trí đắc địa khi giáp đường Vành đai 2 Bắc Giang (theo quy hoạch), thuận tiện cho nhà đầu tư di chuyển và vận chuyển hàng hóa.
Vị trí: Xã Nghĩa Trung, thị xã Việt Yên, xã Song Mai, phường Đa Mai, thành phố Bắc Giang, tỉnh Bắc Giang.
LH Phòng KD CDT: .
1/ Lợi thế đầu tư thời điểm hiện tại.
A. Thông tin chung.
- Diện tích đất đề xuất: 10.000m².
- Giá 3,2 triệu/m² cho cả thời gian thuê đến năm 2075 (chưa VAT), mức cạnh tranh nhất thị trường khu vực Việt Yên, Bắc Giang hiện tại.
- Kết nối thuận lợi ra các trục quốc lộ/cao tốc khu vực Hà Nội, các của ngõ phía Đông Bắc Thủ Đô.
- Quỹ đất linh hoạt từ 5000m² - 1h - 1,2ha - 2ha vuông vức tối ưu bố trí nhà xưởng, đường nội bộ, bãi xe, PCCC.
- Hạ tầng sẵn sàng khu vực: Điện, nước, viễn thông, hệ thống xử lý nước thải theo quy chuẩn.
- Phù hợp FDI/DDI: Dễ tuyển lao động, chuỗi cung ứng sẵn có, cộng đồng DN công nghiệp phát triển.
- Mật độ xây dựng 70%. Chiều cao công trình không quá 5 tầng:
B. Phí dịch vụ công nghiệp và bảo trì hạ tầng.
- Phí quản lý và bảo trì: 14.500 VND/m²/năm.
- Giá nước sạch: 14.500 VND/m3.
- Phí xử lý nước thải: 11.500 VND/m3.
- Tiền thuê đất hàng năm: Được áp dụng theo Quyết định của UBND tỉnh Bắc Giang tại từng thời điểm.
* Lưu ý: Đơn giá trên chưa bao gồm VAT và có thể được thay đổi mà không cần thông báo trước.
2/ Ưu đãi thuế.
- Miễn 11 năm tiền thuế đất trả tiền hàng năm.
- Thuế Thu nhập doanh nghiệp: Miễn 100% trong 02 năm đầu, giảm 50% trong 04 năm tiếp theo.
- Miễn thuế nhập khẩu đối với hàng hóa để tạo tài sản cố định.
- Hỗ trợ nhà đầu tư: Miễn phí thủ tục xin cấp ERC, hỗ trợ thủ tục IRC, tặng gói thiết kế và tối ưu quy hoạch mặt bằng.
- Giá độc quyền tốt nhất khu vực và thị trường.
LH Phòng KD CDT: .
Vị trí: Xã Nghĩa Trung, thị xã Việt Yên, xã Song Mai, phường Đa Mai, thành phố Bắc Giang, tỉnh Bắc Giang.
LH Phòng KD CDT: .
1/ Lợi thế đầu tư thời điểm hiện tại.
A. Thông tin chung.
- Diện tích đất đề xuất: 10.000m².
- Giá 3,2 triệu/m² cho cả thời gian thuê đến năm 2075 (chưa VAT), mức cạnh tranh nhất thị trường khu vực Việt Yên, Bắc Giang hiện tại.
- Kết nối thuận lợi ra các trục quốc lộ/cao tốc khu vực Hà Nội, các của ngõ phía Đông Bắc Thủ Đô.
- Quỹ đất linh hoạt từ 5000m² - 1h - 1,2ha - 2ha vuông vức tối ưu bố trí nhà xưởng, đường nội bộ, bãi xe, PCCC.
- Hạ tầng sẵn sàng khu vực: Điện, nước, viễn thông, hệ thống xử lý nước thải theo quy chuẩn.
- Phù hợp FDI/DDI: Dễ tuyển lao động, chuỗi cung ứng sẵn có, cộng đồng DN công nghiệp phát triển.
- Mật độ xây dựng 70%. Chiều cao công trình không quá 5 tầng:
B. Phí dịch vụ công nghiệp và bảo trì hạ tầng.
- Phí quản lý và bảo trì: 14.500 VND/m²/năm.
- Giá nước sạch: 14.500 VND/m3.
- Phí xử lý nước thải: 11.500 VND/m3.
- Tiền thuê đất hàng năm: Được áp dụng theo Quyết định của UBND tỉnh Bắc Giang tại từng thời điểm.
* Lưu ý: Đơn giá trên chưa bao gồm VAT và có thể được thay đổi mà không cần thông báo trước.
2/ Ưu đãi thuế.
- Miễn 11 năm tiền thuế đất trả tiền hàng năm.
- Thuế Thu nhập doanh nghiệp: Miễn 100% trong 02 năm đầu, giảm 50% trong 04 năm tiếp theo.
- Miễn thuế nhập khẩu đối với hàng hóa để tạo tài sản cố định.
- Hỗ trợ nhà đầu tư: Miễn phí thủ tục xin cấp ERC, hỗ trợ thủ tục IRC, tặng gói thiết kế và tối ưu quy hoạch mặt bằng.
- Giá độc quyền tốt nhất khu vực và thị trường.
LH Phòng KD CDT: .
Lưu ý :
Quý vị đang xem nội dung tin rao "Bán căn nhà đường Võ Oanh, Hẻm xe hơi 5x15,1 Trệt 2 lầu/ 1 tum, nhà kiên cố ở liền, Giá 15ty " - Mã tin 250809. Mọi thông tin, nội dung liên quan tới tin rao này là do người đăng tin đăng tải và chịu trách nhiệm. Chuannhadat.com luôn cố gắng để các thông tin được hữu ích nhất cho quý vị tuy nhiên Chuannhadat.com không đảm bảo và không chịu trách nhiệm về bất kỳ thông tin, nội dung nào liên quan tới tin rao này. Trường hợp phát hiện nội dung tin đăng không chính xác. Quý vị hãy cung cấp thông tin cho Chuannhadat.com bằng cách gửi " Phản ánh / Báo xấu " để Ban quản trị kiểm tra lại thông tin bài đăng nhanh và kịp thời nhất.








