

Bán căn hộ sân vườn riêng, tầng 5 (tổng 96m2), sổ sẵn
370 Nguyễn Văn Quỳ, phường Phú Thuận, quận 7, Tp.HCM
Mức giá
3.9 tỷ40.6 triệu/m²Diện tích
96 m²Lưu tin
Đặc điểm của bất động sản
Địa chỉ370 Nguyễn Văn Quỳ, phường Phú Thuận, quận 7, Tp.HCM
Giá3.9 tỷ
Diện tích96 m²
Giá / m240.6 triệu/m²
Số phòng ngủ2
Số phòng tắm2
Nội thấtBàn giao thô
Pháp lýSổ hồng/Sổ đỏ
Ngày đăng3 tháng trước
Mô tả chi tiết
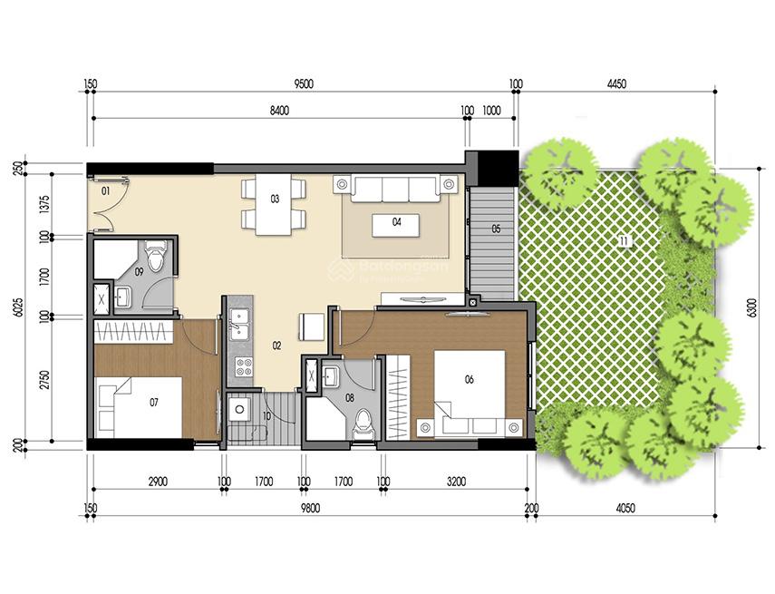
Cần bán căn hộ Luxgarden.
- Diện tích: 61m² + Sân vườn 35m².
- Căn 2PN, 2WC, nhà trống, view hướng sông.
- Ban công đông nam, cửa tây bắc.
- Giá: 3tỷ9, sổ sẵn.
- Giữ HD thuê đến t10/2026.
Ngoài ra còn có một số căn khác đang rao bán có thể tham khảo thêm.
1. 2PN - 2WC: 61m². Full đồ. Giá 3tỷ4.
2. 2PN - 2WC: 69m². Nội thất cơ bản. Giá: 3 tỷ450.
Xem nhà Gặp Trang - - có zalo.
Nhận ký gửi mua bán - cho thuê căn hộ tại Luxgarden Quận 7.
- Diện tích: 61m² + Sân vườn 35m².
- Căn 2PN, 2WC, nhà trống, view hướng sông.
- Ban công đông nam, cửa tây bắc.
- Giá: 3tỷ9, sổ sẵn.
- Giữ HD thuê đến t10/2026.
Ngoài ra còn có một số căn khác đang rao bán có thể tham khảo thêm.
1. 2PN - 2WC: 61m². Full đồ. Giá 3tỷ4.
2. 2PN - 2WC: 69m². Nội thất cơ bản. Giá: 3 tỷ450.
Xem nhà Gặp Trang - - có zalo.
Nhận ký gửi mua bán - cho thuê căn hộ tại Luxgarden Quận 7.
Lưu ý :
Quý vị đang xem nội dung tin rao "Bán căn nhà đường Võ Oanh, Hẻm xe hơi 5x15,1 Trệt 2 lầu/ 1 tum, nhà kiên cố ở liền, Giá 15ty " - Mã tin 250809. Mọi thông tin, nội dung liên quan tới tin rao này là do người đăng tin đăng tải và chịu trách nhiệm. Chuannhadat.com luôn cố gắng để các thông tin được hữu ích nhất cho quý vị tuy nhiên Chuannhadat.com không đảm bảo và không chịu trách nhiệm về bất kỳ thông tin, nội dung nào liên quan tới tin rao này. Trường hợp phát hiện nội dung tin đăng không chính xác. Quý vị hãy cung cấp thông tin cho Chuannhadat.com bằng cách gửi " Phản ánh / Báo xấu " để Ban quản trị kiểm tra lại thông tin bài đăng nhanh và kịp thời nhất.







