

CĐT bán lô đất từ 1ha KCN Minh Quang, Hưng Yên tiếp giáp QL 5 (Hà Nội - Hải Phòng)-Giá 3,1 triệu/m²
Đường Quốc Lộ 5, Phường Bạch Sam, Thị xã Mỹ Hào, Hưng Yên
Mức giá
31 tỷ3.1 triệu/m²Diện tích
10000 m²Lưu tin
Đặc điểm của bất động sản
Địa chỉĐường Quốc Lộ 5, Phường Bạch Sam, Thị xã Mỹ Hào, Hưng Yên
Giá31 tỷ
Diện tích10000 m²
Giá / m23.1 triệu/m²
Ngày đăng2 tháng trước
Mô tả chi tiết
1/ Thông tin chung.
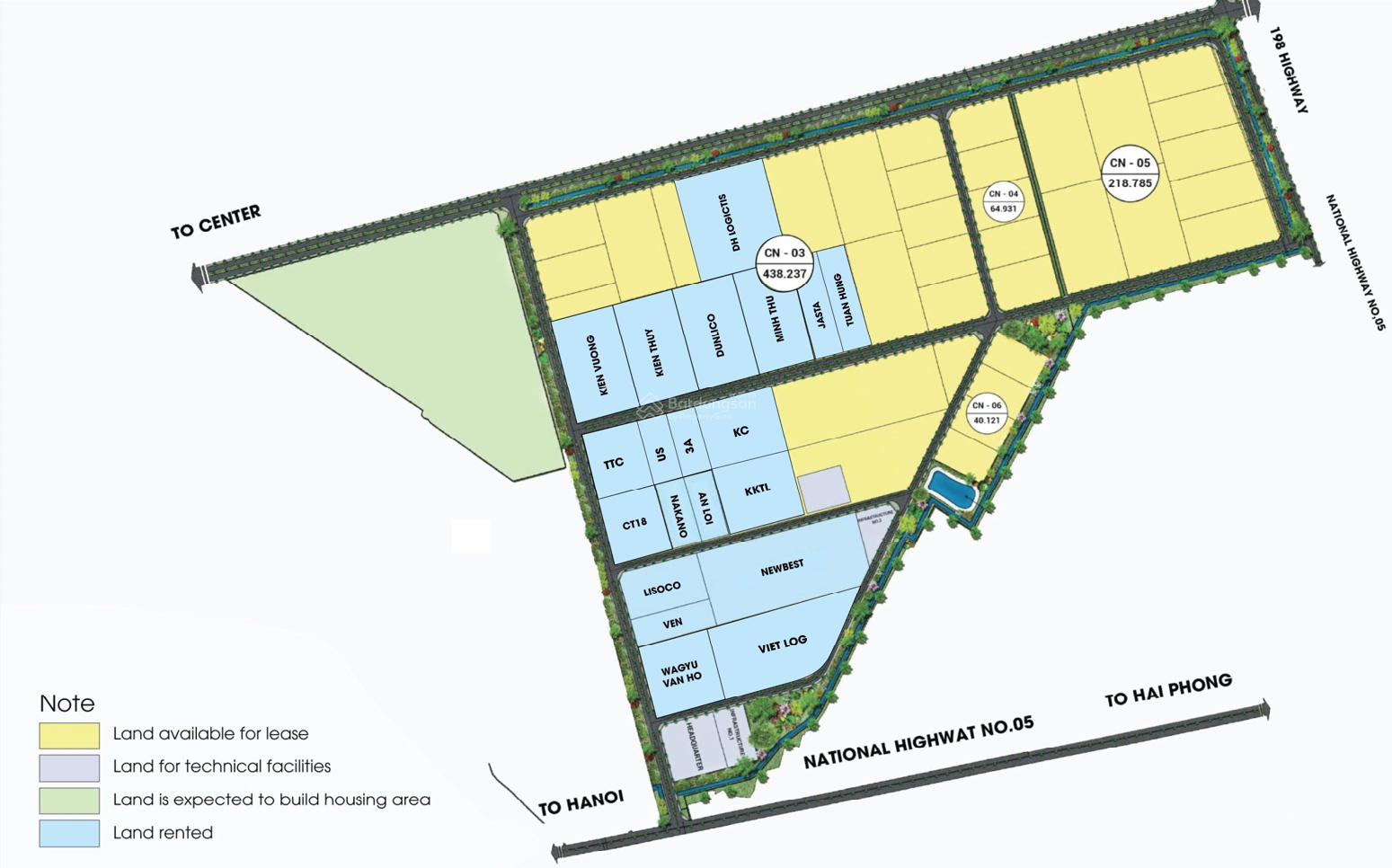
KCN có địa chỉ tại xã Bạch Sam, huyện Mỹ Hào, tỉnh Hưng Yên, nằm tiếp giáp Quốc lộ 5 (Hà Nội - Hải Phòng), Hà Nội: 38 km (45), Hải Dương: 21km, Hưng Yên: 40 km, sân bay Nội Bài: 55 km (60), Cảng Hải Phòng 65 km. (65) Cảng biển nước sâu Quảng Ninh: Khoảng 105 km. (100), cửa khẩu Trung Quốc: 174km.
Tỉ lệ lấp đầy: 80%.
Thời gian vận hành: 50 năm (2008 2058).
Lĩnh vực thu hút đầu tư: Công nghiệp điện, điện tử, điện lạnh, cơ khí, công nghiệp chế biến nông lâm sản, thực phẩm, vật liệu xây dựng cao cấp, công nghiệp sản xuất bao bì, sản xuất hàng tiêu dùng, công nghiệp nhẹ và các ngành công nghiệp sạch khác.
2/ Ưu đãi.
Thuế TNDN:
- Được hưởng thuế suất 10% trong thời hạn 15 năm và được miễn thuế 4 năm, giảm 50% số thuế phải nộp trong 9 năm tiếp theo.
- Được hưởng thuế suất 17% và được miễn thuế 2 năm, giảm 50% số thuế phải nộp trong 4 năm tiếp theo.
- Thủ tục xin cấp Giấy chứng nhận đăng ký đầu tư.
- Thủ tục xin cấp Giấy chứng nhận đăng ký doanh nghiệp.
- Hỗ trợ tín dụng.
- Hỗ trợ đào tạo, phát triển nguồn nhân lực.
- Hỗ trợ, phối hợp cung cấp thông tin, tư vấn triển khai các thủ tục khác của Dự án.
Liên hệ ngay: để được ưu đãi cao nhất từ CDT.
KCN có địa chỉ tại xã Bạch Sam, huyện Mỹ Hào, tỉnh Hưng Yên, nằm tiếp giáp Quốc lộ 5 (Hà Nội - Hải Phòng), Hà Nội: 38 km (45), Hải Dương: 21km, Hưng Yên: 40 km, sân bay Nội Bài: 55 km (60), Cảng Hải Phòng 65 km. (65) Cảng biển nước sâu Quảng Ninh: Khoảng 105 km. (100), cửa khẩu Trung Quốc: 174km.
Tỉ lệ lấp đầy: 80%.
Thời gian vận hành: 50 năm (2008 2058).
Lĩnh vực thu hút đầu tư: Công nghiệp điện, điện tử, điện lạnh, cơ khí, công nghiệp chế biến nông lâm sản, thực phẩm, vật liệu xây dựng cao cấp, công nghiệp sản xuất bao bì, sản xuất hàng tiêu dùng, công nghiệp nhẹ và các ngành công nghiệp sạch khác.
2/ Ưu đãi.
Thuế TNDN:
- Được hưởng thuế suất 10% trong thời hạn 15 năm và được miễn thuế 4 năm, giảm 50% số thuế phải nộp trong 9 năm tiếp theo.
- Được hưởng thuế suất 17% và được miễn thuế 2 năm, giảm 50% số thuế phải nộp trong 4 năm tiếp theo.
- Thủ tục xin cấp Giấy chứng nhận đăng ký đầu tư.
- Thủ tục xin cấp Giấy chứng nhận đăng ký doanh nghiệp.
- Hỗ trợ tín dụng.
- Hỗ trợ đào tạo, phát triển nguồn nhân lực.
- Hỗ trợ, phối hợp cung cấp thông tin, tư vấn triển khai các thủ tục khác của Dự án.
Liên hệ ngay: để được ưu đãi cao nhất từ CDT.
Lưu ý :
Quý vị đang xem nội dung tin rao "Bán căn nhà đường Võ Oanh, Hẻm xe hơi 5x15,1 Trệt 2 lầu/ 1 tum, nhà kiên cố ở liền, Giá 15ty " - Mã tin 250809. Mọi thông tin, nội dung liên quan tới tin rao này là do người đăng tin đăng tải và chịu trách nhiệm. Chuannhadat.com luôn cố gắng để các thông tin được hữu ích nhất cho quý vị tuy nhiên Chuannhadat.com không đảm bảo và không chịu trách nhiệm về bất kỳ thông tin, nội dung nào liên quan tới tin rao này. Trường hợp phát hiện nội dung tin đăng không chính xác. Quý vị hãy cung cấp thông tin cho Chuannhadat.com bằng cách gửi " Phản ánh / Báo xấu " để Ban quản trị kiểm tra lại thông tin bài đăng nhanh và kịp thời nhất.








